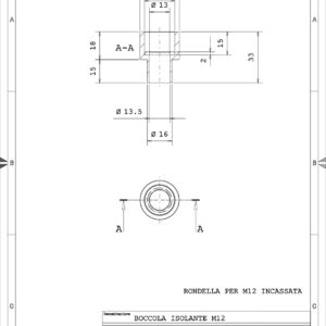
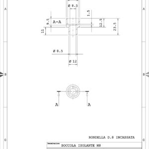
BOCCOLE